Invalid license: Your evaluation license of Refined expired.

Die sieben Rechnerräume des Informationszentrums befinden sich in Bau 1 und Bau 2. Die genauen Standorte entnehmen Sie bitte den Lageplänen.

The seven computer rooms of the Information Center are located in Building 1 and Building 2. Please refer to the site plans for the exact locations.


Rechnerraum in Bau 1 / Computer room in Building 1

Bau 1 - Erdgeschoss / Building 1 - Ground floor

Vorlesungsraum 1-014 / Lecture room 1-014



Rechnerräume in Bau 2 / Computer rooms in Building 2

Bau 2 - Erdgeschoss /  Building 2 - Ground floor

Vorlesungsraum 2-011 / Lecture room 2-011

Übungsraum 2-021 / Exercise room 2-021




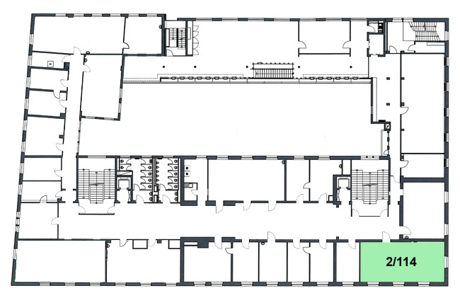
Bau 2 - 1. Obergeschoss / Building 2 - first floor

Übungsraum 2-114 / Exercise room 2-114



Bau 2 - 2. Obergeschoss / Building 2 - Second floor

Vorlesungsräume 2-201 und 2-229 /  Lecture rooms 2-201 and 2-229



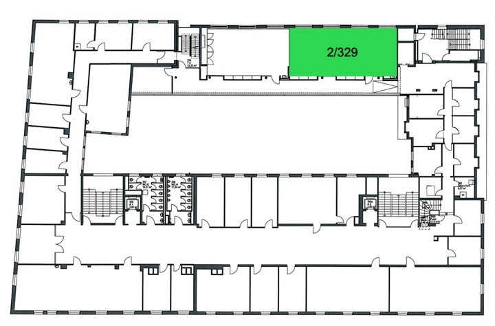
Bau 2 - 3. Obergeschoss / Building 2 - Third floor

Vorlesungsraum 2-329 / Lecture room 2-329